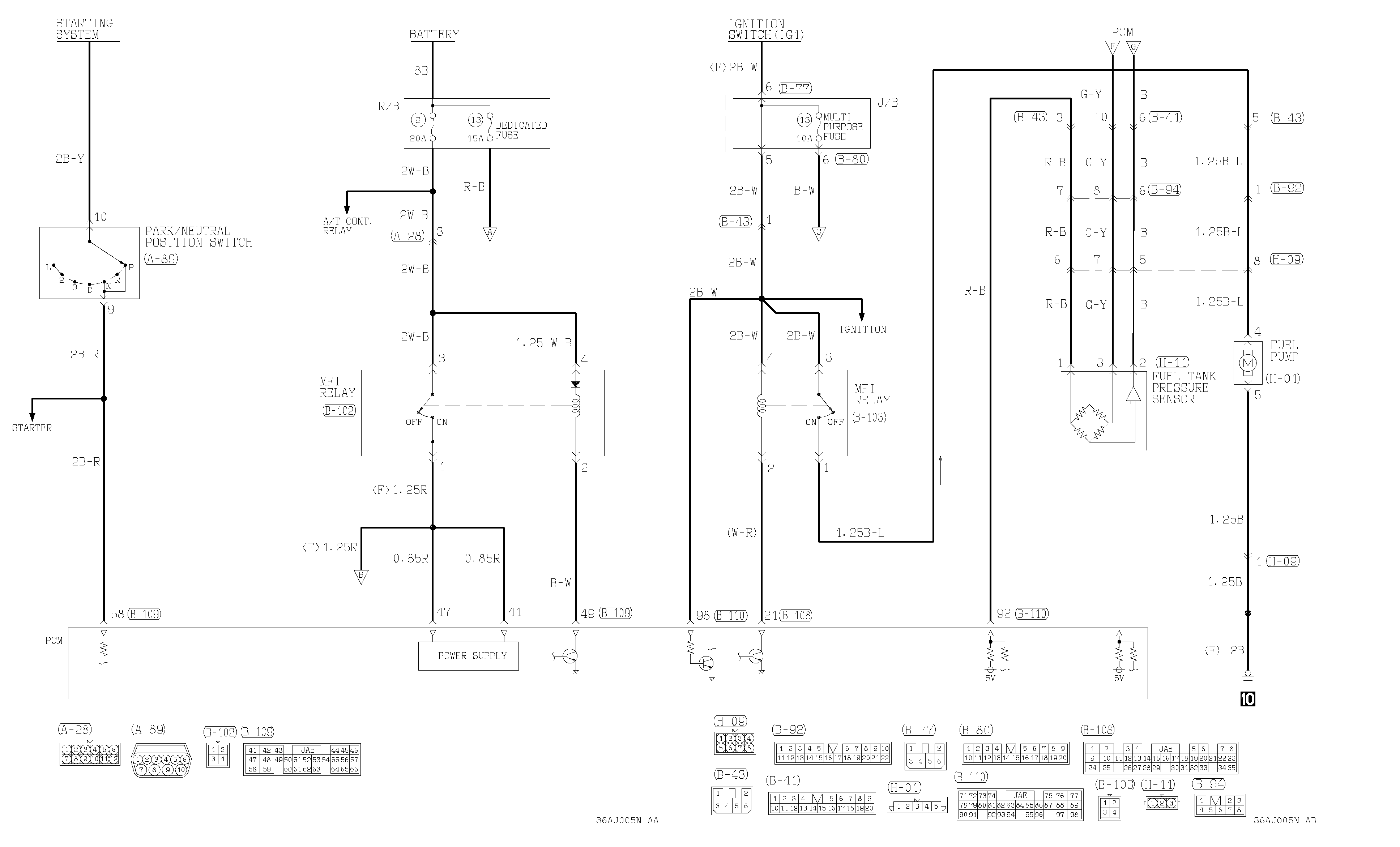
[Previous] [Next]

MFI SYSTEM