[Previous] [Next]

DTC 31 (P0753): Low-Reverse Solenoid Valve System


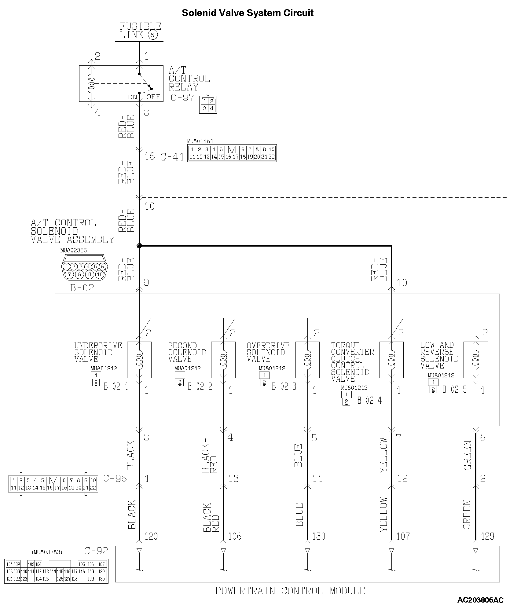
CIRCUIT OPERATION
The A/T control relay supplies battery positive voltage to the solenoid valve assembly (terminals 9 and 10).
The solenoid valve closes when energized (on), and opens when not energized (off). The PCM energizes the solenoid valve based on input data from sensors such as the TP Sensor, Transmission Range Switch, Stoplight Switch, Vehicle Speed Sensor, Input Shaft Speed Sensor, Output Shaft Speed Sensor, and Transmission Fluid Temperature Sensor.
The PCM provides the ground to energize the solenoid. The amount of time that the circuit is grounded is displayed on scan tool MB991958 in percent.
When the solenoid is energized or de-energized, fluid passes through the valve body and transmission passages to apply and release components.
DESCRIPTIONS OF MONITOR METHODS
If solenoid terminal voltage is below specified value when shift control is not in progress, PCM judges that low-reverse solenoid has a failure.
MONITOR EXECUTION
Continuous
MONITOR EXECUTION CONDITIONS (Other monitor and Sensor)

Other Monitor (There is no temporary DTC stored in memory for the item monitored below)
• DTC 41 (P0731): 1st gear incorrect ratio
• DTC 42 (P0732): 2nd gear incorrect ratio
• DTC 43 (P0733): 3rd gear incorrect ratio
• DTC 44 (P0734): 4th gear incorrect ratio
• DTC 46 (P0736): Reverse gear incorrect ratio
• DTC 36 (P0743): Torque converter clutch solenoid malfunction
• DTC 32 (P0758): Underdrive solenoid malfunction
• DTC 33 (P0763): Second solenoid malfunction
• DTC 34 (P0768): Overdrive solenoid malfunction
• DTC 54 (P1751): A/T control relay malfunction

Sensor (The sensor below is determined to be normal)
• Torque converter clutch solenoid
• Underdrive solenoid
• Second solenoid
• Overdrive solenoid
• A/T control relay
LOGIC FLOW CHARTS (Monitor Sequence)
DTC SET CONDITIONS

Check Conditions
Solenoid status: either solid ON or OFF.
Shift status: in-gear.
Voltage of battery: 10 volts or more.

Judgement Criteria
Solenoid voltage: 3 volts or less. (0.3 second)
If DTC 31 (P0753) is set consecutively four times, the transmission is locked into 3rd gear as a fail-safe measure, and the "N" range light flashes once per second.
OBD-II DRIVE CYCLE PATTERN
Start the engine, and keep the vehicle stopped in P range for 5 seconds.
TROUBLESHOOTING HINTS (The most likely causes for this code to be set are:
Malfunction of low-reverse solenoid valve
Damaged harness, connector
Malfunction of the PCM