[Previous] [Next]

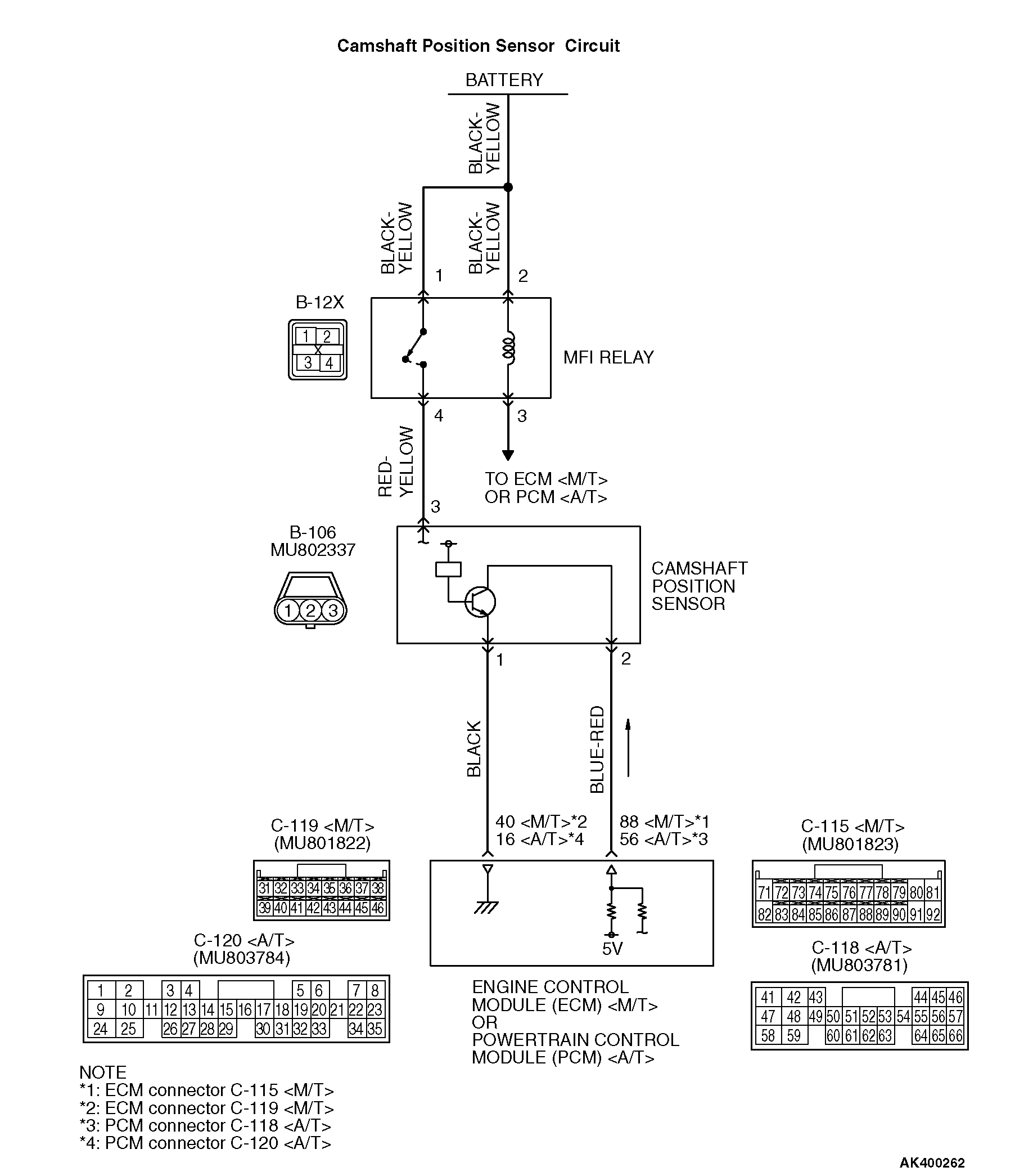
DTC P0340: Camshaft Position Sensor Circuit


CIRCUIT OPERATION
• The camshaft position sensor power is supplied from the MFI relay (terminal No. 4).
• Terminal No. 1 of the camshaft position sensor is grounded with ECM (terminal No. 40) <M/T> or PCM (terminal No. 16) <A/T>.
• A 5-volt voltage is applied on the camshaft position sensor output terminal (terminal No. 2) from the ECM (terminal No. 88) <M/T> or PCM (terminal No. 56) <A/T>. The camshaft position sensor generates a pulse signal when the output terminal is opened and grounded.
TECHNICAL DESCRIPTION
• The camshaft position sensor functions to detect the top dead center position of the number 1 cylinder and to convert that data to pulse signals that are input to the ECM <M/T> or PCM <A/T>.
• When the engine is running, the camshaft position sensor outputs a pulse signal.
• The ECM <M/T> or PCM <A/T> checks whether pulse signal is input while the engine is cranking.
DESCRIPTIONS OF MONITOR METHODS
• An open, short circuit, or faulty output pattern is detected while monitoring the camshaft position sensor output.
MONITOR EXECUTION
Continuous
MONITOR EXECUTION CONDITIONS (Other monitor and Sensor)

Other Monitor (There is no temporary DTC stored in memory for the item monitored below)
• Not applicable

Sensor (The sensor below is determined to be normal)
• Not applicable
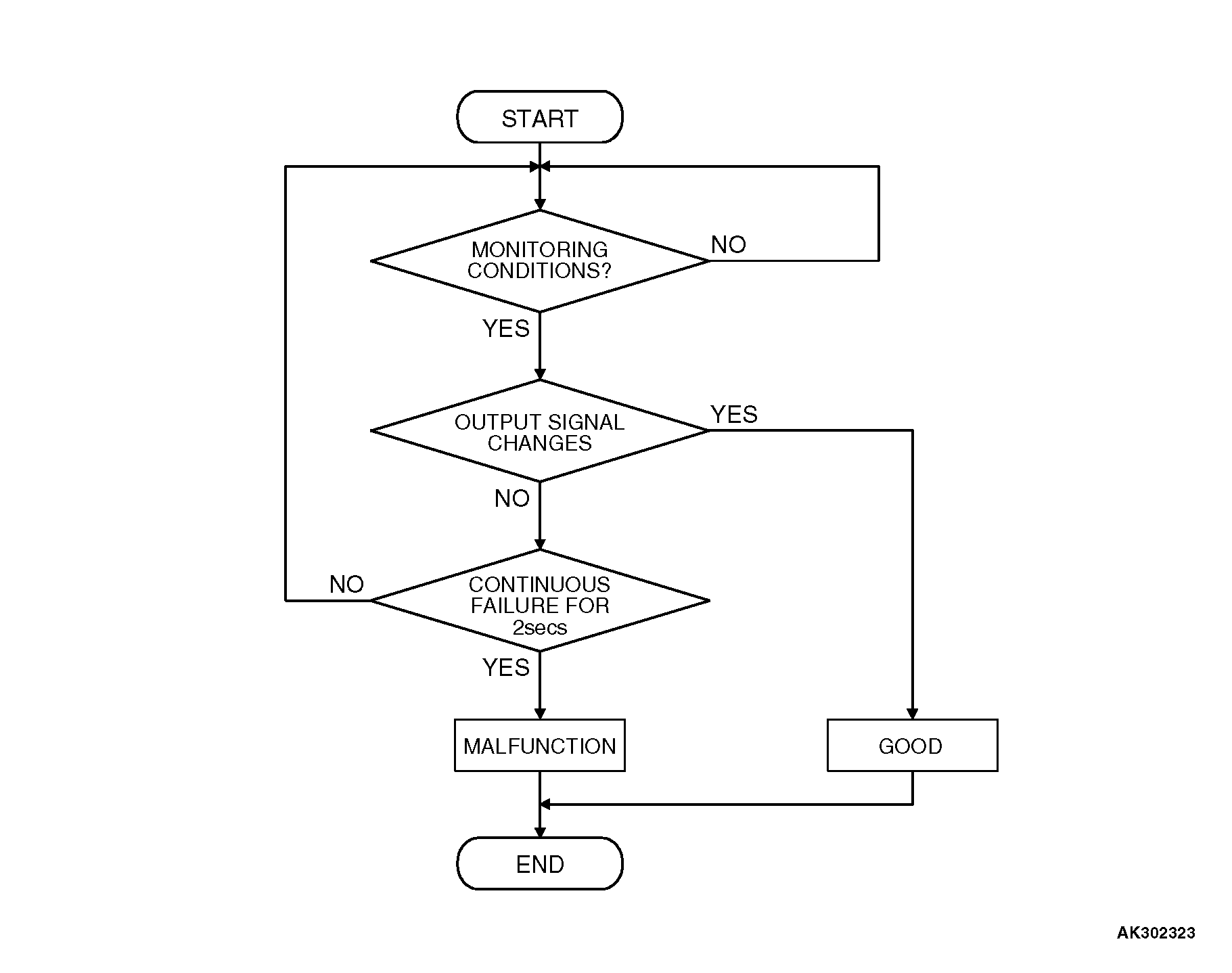
DTC SET CONDITIONS <Range/Performance problem-alignment> Logic Flow Chart


Check Condition
Engine speed is higher than 50 r/min.

Judgment Criterion
• Camshaft position sensor output voltage has not changed (no pulse signal is input) for 2 seconds.
DTC SET CONDITIONS <Circuit continuity> Logic Flow Chart


Check Condition
• Engine speed is higher than 50 r/min.

Judgment Criterion
Normal signal pattern has not been input for cylinder identification from the crankshaft position sensor signal and camshaft position sensor signal for 2 seconds.
OBD-II DRIVE CYCLE PATTERN
Refer to Diagnostic Function - OBD-II Drive Cycle - Pattern 19 .
TROUBLESHOOTING HINTS (The most likely causes for this code to be set are: )
• Camshaft position sensor failed.
• Open or shorted camshaft position sensor circuit, or connector damage.
• ECM failed. <M/T>
• PCM failed. <A/T>